Te koop Residential Plot Costa Del Sol Mijas Costa € 695.000,-
Opportunity in the heart of Mijas Costa
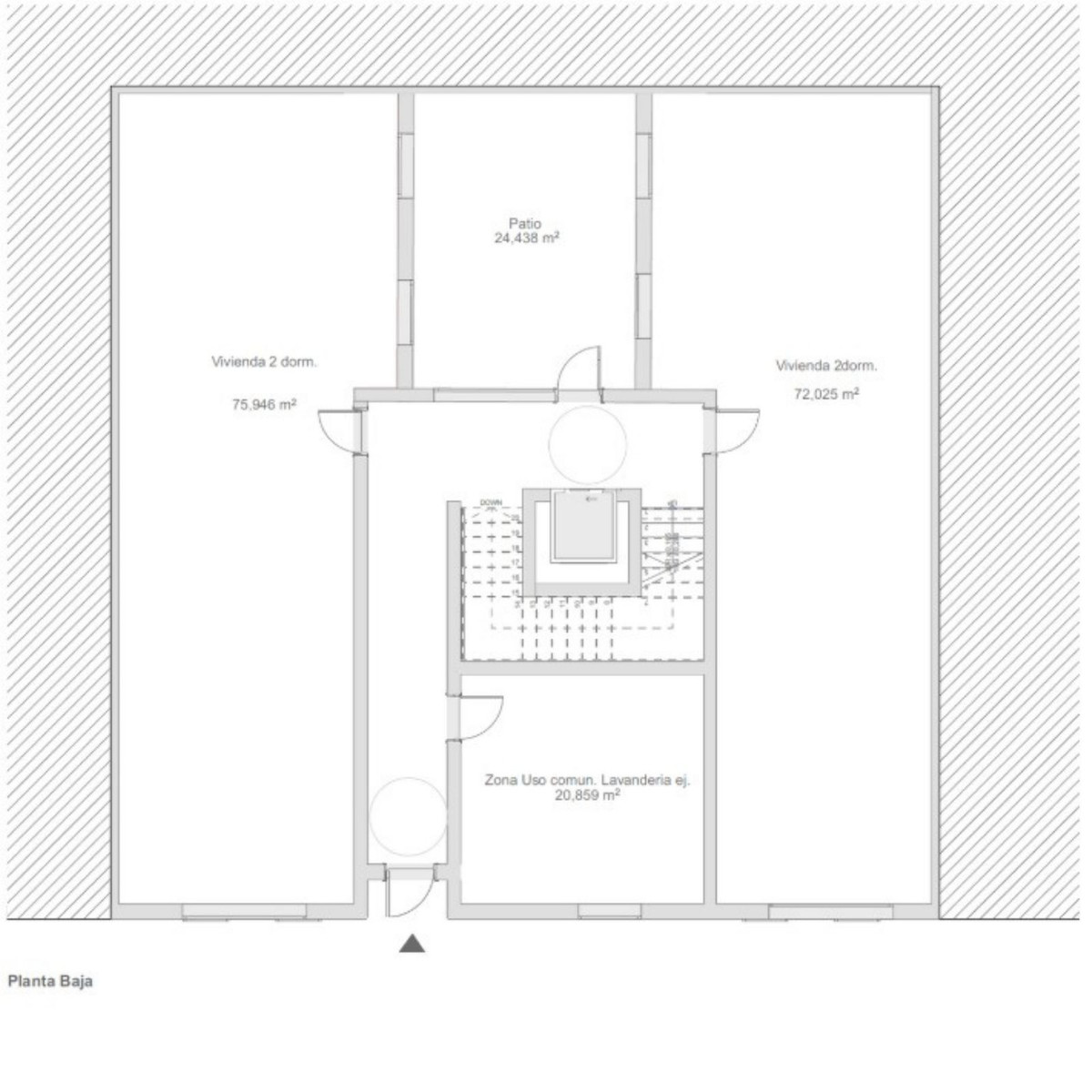
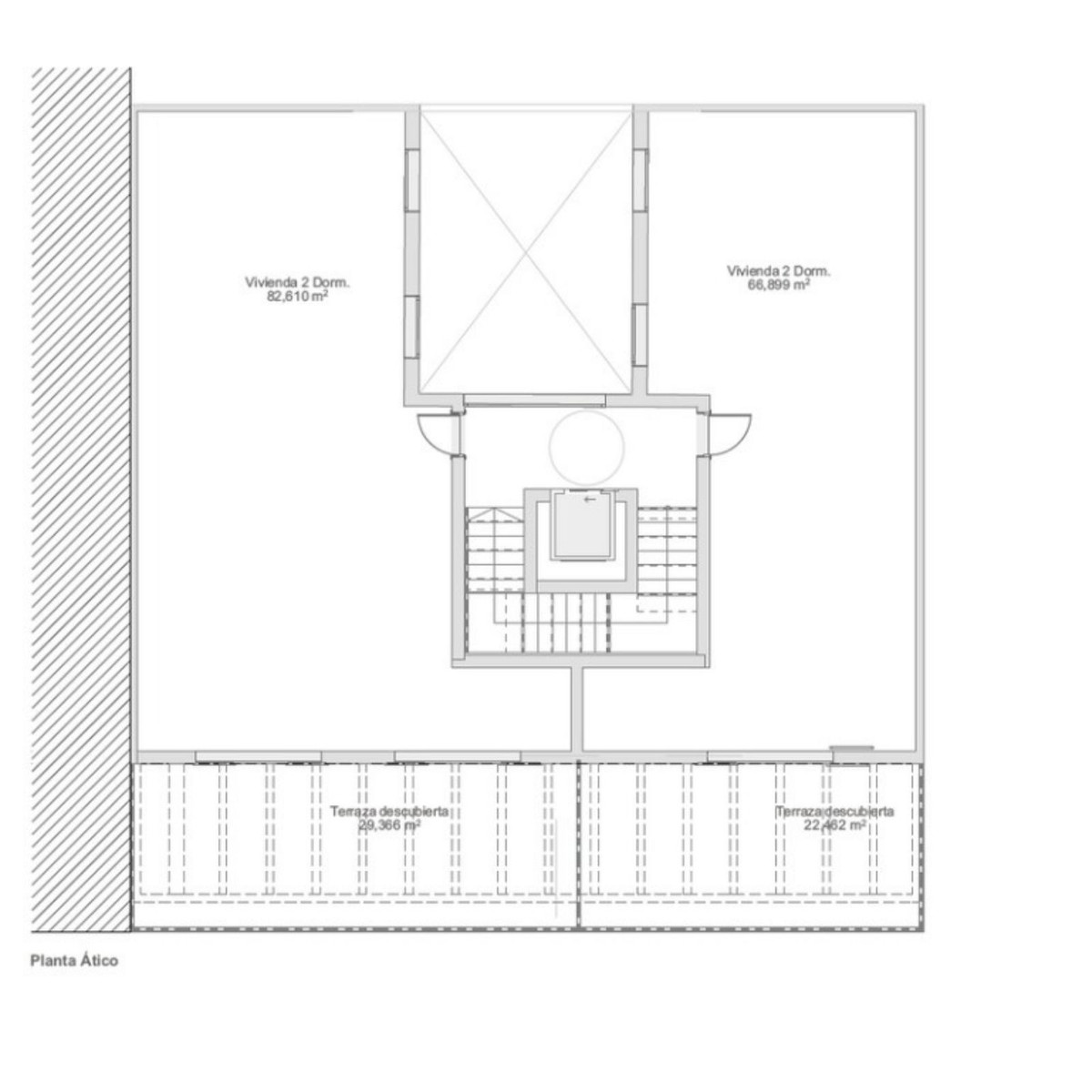
Charming old house located right in the center of Mijas Costa, with an approved project to build a new development of 10 apartments.
Enjoy an unbeatable location close to all amenities — shops, restaurants, transport, and everything you need for a comfortable lifestyle.
Perfect as an investment or residential development in one of the most sought-after areas of the Costa del Sol.
“Includes current plot and architectural project.”
???? Don’t hesitate to contact us for more information!
meer info