Te koop Vrijstaande Villa Costa Del Sol Benahavís € 3.695.000,-
OFF-PLAN ECOLOGICAL CONTEMPORARY VILLA - KEY-IN-HAND in Monte Mayor with views over the green valley, this property has it all, this will be a true jewel for those who love space, luxury, and quality!
This luxury villa will be built on a plot of 7.250,00 m2 and consist out of 3 floors, all materials like the kitchen, floors, and bathroom walls will be from the well-renowned Grespania company.
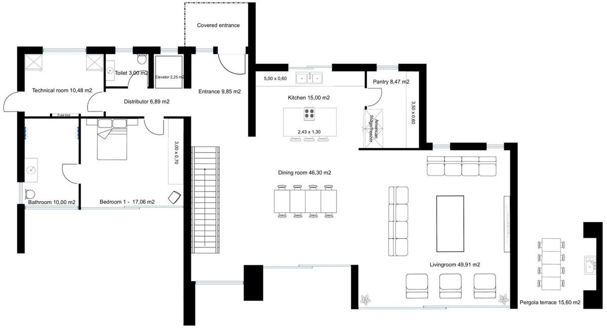
Ground floor: Pergola carport port with motorized entrance gate, entrance hall with double height ceiling, elevator, a distributor which leads to the guest toilet, technical room, and a bedroom with a big en-suite bathroom and private terrace. Furthermore, on this floor, you have a huge dining room with a tailor-made open-plan kitchen fully equipped with Bosch appliances, a pantry and a big living room. Both, the dining room and living room give out to the huge, covered terraces, and for those who love swimming or splashing a huge 80 m2 pool with a kid’s pool, water-featured bronzing area, and a chill-out. There is pavement around the full villa to make access to the different parts of the garden and villa easy. The garden will be easy to maintain and fully fenced with a 2-meter-high galvanized strong fence.
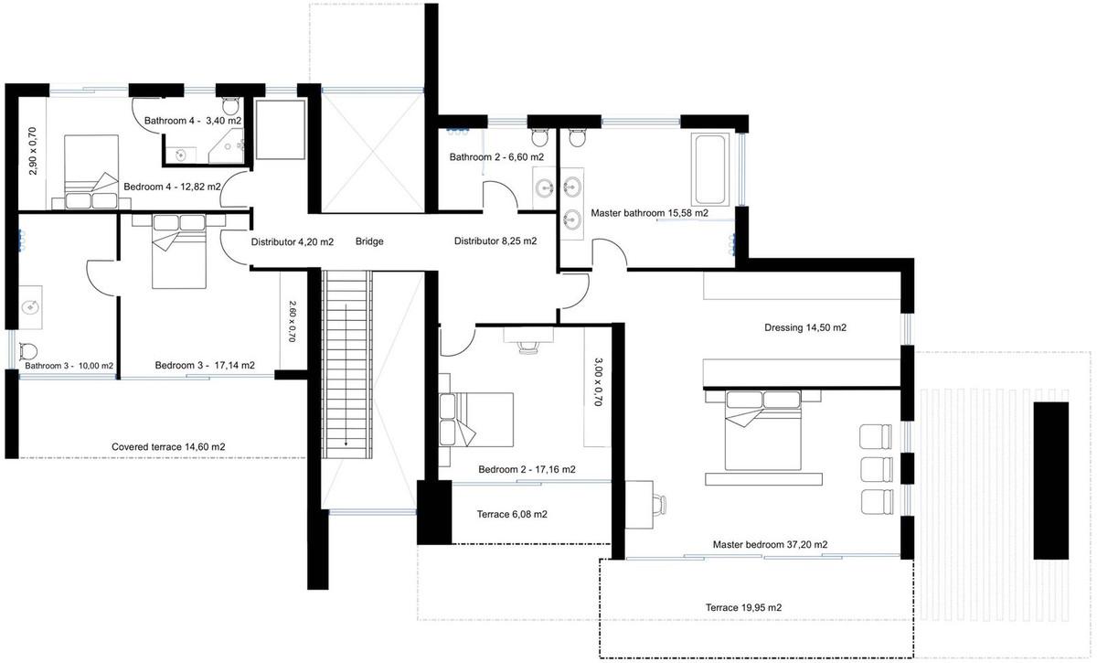
First floor: The staircase or elevator leads you to a landing that divides the first floor into 2 parts. On one side you have 2 bedrooms each with an en-suite bathroom and one of the bedrooms has a private terrace. On the other side, you have a bedroom with a bathroom and a private terrace. And of course, on this floor, you have the master bedroom with a huge dressing, en-suite bathroom, and a big terrace.
Basement/Garage: The garage has space for 4 big cars, furthermore you have the technical pool room, a toilet, and the car elevator. The storage room could be converted into a games room or cinema room
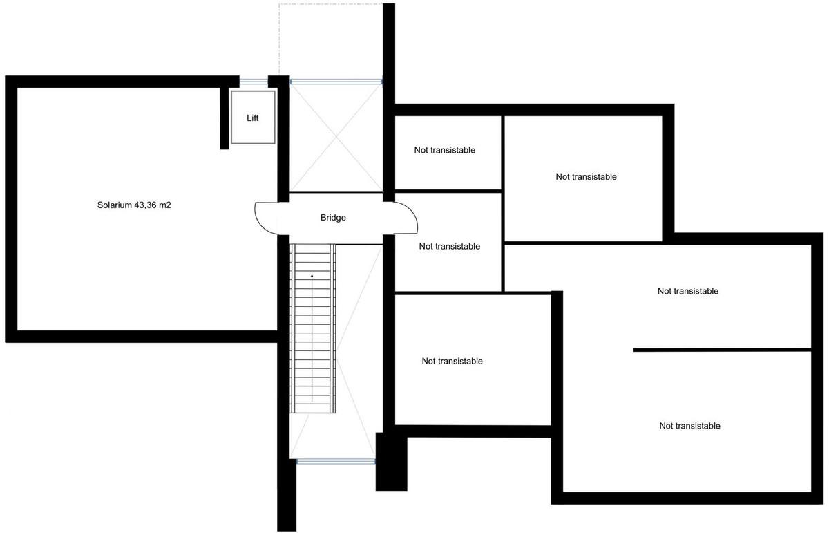
Solarium of 45 m2 surrounded with glass to give you privacy
PICTURES OF KITCHENS AND BATHROOMS ARE JUST EXAMPLES, THE FINAL CHOICE WILL BE THAT FROM THE CLIENT!
Example of some of the specifications,
- Interior and exterior floor tiles from GRESPANIA 600x600 – 800x800 - 1200x1200 (Color and size to choose)
- Bathroom walls with COVERLAM plates (GRESPANIA) 2700X1200 (Color to choose)
- Bathrooms from ROCA – DURAVIT – VILLEROY BOCH – GEBERIT – HANSGROHE OR SIMILAR
- Aerothermia/airconditioning
- Elevator from Schindler or similar
- Underfloor heating in the full villa
- Ceiling high windows with a sunken track, 5+5/chamber/4+4
- Ceiling high and 1-meter wide interior doors
- Fully fitted kitchen with aluminum frame doors and covered with COVERLAM (Color to choose)
- Island with COVERLAM 3600X1600 no visible joints (Color to choose)
- White goods from Bosch or AEG
- Heated pool
- 30 solar panels
- 3 lithium batteries of each 10kW
- Car charger
- Domotica
- Car elevator
We are a construction company, Key-in-Hand, that can design and construct any possibility you can think of. If you do not see a design of us that you like we design a totally new villa for you according to your ideas and input.
Although we prefer to construct ecological building, we can construct from traditional construction to ecological constructions it all depends on you.
meer info